Speciális belső hőcserélő alkalmazása napenergiás tárolóban

A jelen dolgozat egy síkkollektoros rendszer segédfűtést nem tartalmazó tárolójában előálló termikus rétegződést vizsgál, amely egy speciális hőcserélő kialakításával és tárolóba történt beépítésével valósult meg. A mérési adatok alapján a tároló magassága mentén 8 egyenlő vastagságú rétegben az alkalmazott vízfogyasztások mellett termikusan rétegzettnek tekinthető a tároló vize, és a számítások szerint ezzel a rétegzettséggel a tárolóból nyerhető energia egy évre vonatkozólag 17,3%-kal volt több, mint a teljesen kevertnek feltételezett tároló esetén lett volna. Az alábbiakban a speciális belső hőcserélő kialakítása és a mérések során nyert eredmények kerülnek részletezésre.

A szerkesztő megjegyzése: Szaklapunk fontosnak tartja, hogy a kis példányszámú, esetenként belső körben terjesztett, de értékes épületgépészeti vonatkozású orgánumokat bemutassa valamilyen formában. Ezek egyike a Magyar Energetika, amelynek cikkeiből időről időre szemezgetni fogunk, mostani cikkünk e szemezgetés első darabja. A lap megrendelhető az alábbi oldalon: http://www.met.mtesz.hu/


Ahhoz, hogy egy napenergiás rendszer a legjobb hatásfokkal hasznosítsa a rendelkezésre álló szoláris energiát, ismerni kell azokat a szempontokat, melyek a minél hatékonyabb működtetéshez fontosak. Egy ezek közül, a tároló termikus rétegzettségére való törekvés. A termikusan rétegzett tároló a kevert, átlaghőmérsékletűnek feltételezetthez képest energetikailag kedvezőbb, hiszen a tárolóból a vízfogyasztás a legfelső rétegből történik, ahol a víz hőmérséklete magasabb, mint a kevert tároló esetén lenne. A szolárkör működését ugyanakkor a legalsó vízréteg és a kollektorból kilépő szolárfolyadék hőmérsékletkülönbsége szabja meg, és mivel az alsó réteg hőmérséklete alacsonyabb a kevert esetbelinél a szabályozás is előnyösebb, így a működés időtartama meghosszabbodik, több hő jut a tárolóba. Christofari és tsai (2003) vizsgálatai szerint éves viszonylatban speciális kivitelezésű síkkollektorukkal 5,25%-kal több energiát nyertek csupán a tárolóbeli víz nagyfokú rétegezettségével a kevert tárolóbeli esethez képest.


Több tényező is befolyásolja a termikus rétegzettséget. Közülük legfontosabbak a tároló geometriája, térfogata, a ki- és beáramlás sebessége és pozíciója. Kleinbach és tsai (1993) vizsgálatai alapján jelentősebb termikus rétegződés csak alacsony ki- és belépő sebességeknél áll elő, Hahne és Chen (1998) eredményei is ezzel összhangban vannak. Lassú beáramlású tartályok termikus rétegződési folyamatait vizsgálva azt tapasztalták, hogy 10-nél nagyobb Richardson szám (a folyadékbeli diffúziós és konvekciós sebesség hányadosa) esetén kedvező a termikus rétegződés. Matrawy és Farkas (1996) vizsgálták, hogy a termikus rétegződést hogyan befolyásolja a tárolóból kilépő és a kollektor felől a tárolóba érkező folyadék pozíciója. Arra a következtetésre jutottak, hogy a kollektor felől érkező folyadék belépési pontja jelentősen, míg a fogyasztás irányába kilépő hely csak kismértékben hat a rétegződésre.


A termikus rétegződés javítására szolgáló módszerek pl. a lebegőcsöves vízbevezetés, a perforáltcsöves megoldás vagy különböző áramlásterelők alkalmazása. Andersen és Furbo (1998) síklemezes és félgömb alakú áramlásterelők hatásait, míg Zachár és tsai (2003) különböző méretű síklemezes diffúzorok alkalmazásának hatására kialakuló termikus rétegződést vizsgált különböző beáramlási feltételek mellett.


A továbbiakban részletezésre kerülő megoldás, amely egy egyedileg kialakított hőcserélő beépítését jelenti a tárolóba, szintén a tökéletesebb rétegződés kialakulását és fennmaradását hivatott segíteni.


A rendszer fő jellemzői


A vizsgált napkollektoros rendszer a SZIE Fizika és Folyamatirányítási Tanszékén működik (Farkas et al., 1998) kollektora által termelt hő egy tároló vizét melegíti. Az 1. ábrán a rendszer működési vázlata látható.



1. ábra A vizsgált szoláris rendszer működési vázlata


A rendszer folyadékos síkkollektora szelektív bevonattal rendelkező, edzett biztonsági üveg fedőlappal ellátott, párhuzamos belső kapcsolású, 1,65 m2 hőelnyelő felületű, déli tájolású, a vízszintessel 45°-os szöget bezáróan helyezkedik el. A szolárfolyadék polipropilén-glikol és desztilláltvíz 50-50% arányú keveréke. A szolárkörben a folyadék áramoltatását egy 0,2016 m3/h térfogatáramú szivattyú biztosítja.
A forróvíz tároló köpenye egy 150 literes bojler, amely segédfűtés nélküli és az egyedileg kialakított belső hőcserélővel van kiegészítve.


A belső hőcserélő kialakítása
A beépített speciális hőcserélő (Géczyné, 2007) 1 mm falvastagságú 15 mm átmérőjű vörösréz csőből készített 13 menetes csőkígyó. A jeladók vezetékei a hőcserélő szimmetria tengelyén átvezetett rézcsövön keresztül jutnak a tárolóba. A 250 mm magas hőcserélő egy 170 mm átmérőjű, 5 mm vastag sárgaréz alaplapra lett integrálva, amely egyben a tároló záróeleme is (2. ábra).



2. ábra A hőcserélő felépítése


A hőcserélőre jól illeszkedő rozsdamentes acél henger az alaplaptól számított 25 mm-es hézaggal rendelkezik (3. ábra), biztosítva a felmelegítendő hidegvíz szabályozott beáramlását a hőcserélőbe, mely a primer közeg által szállított hő átadása utáni konvekciós áramlással működik.



3. ábra A hőcserélő borítása


A hőcserélő hengerpalástjának folytatásaként egy 40 mm átmérőjűre leszűkített 740 mm magas 1,5 mm falvastagságú rézcsőben áramlik tovább a hőcserélő által felmelegített víz a bojler felső részébe. A szűkítés 30 mm-es szakaszon valósult meg (4. ábra), a leszűkített cső a bojler teteje alatt 95 mm-rel végződik. A konvekciós elven működő áramlási „folyosó” 10 mm vastagságú szilikon-kaucsuk zártcellás habszigetelést kapott (5. ábra).



4. ábra A szűkítés megoldása



5. ábra A hőcserélő szigetelése


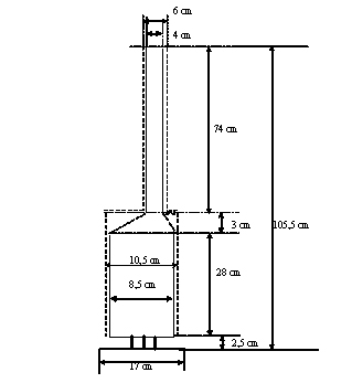
A hőcserélő rendszer ilyen módon történő kialakítása optimális feltételeket biztosít a tárolóbeli közegben a termikus rétegződés kialakulásához. A 6. ábra a hőcserélő egység geometriai méreteit szemlélteti.



6. ábra A hőcserélő egység geometriája


Az 1150 mm magas forróvíz tárolóban a termikus rétegződés vizsgálatára kialakított termoelemes érzékelőrendszer réz csatlakozással rendelkező, hőálló műanyagból (polipropilén) készült csőszakaszokból lett összeépítve polifúziós hegesztéssel. A magassága 955 mm. A mérőhelyek (8 db) a tároló 8 egyenlő vastagságú rétegének középpontjai magasságában helyezkednek el (7. ábra)



7. ábra A mérőhelyek elhelyezkedése


Ún. danamit komponens műanyag végelzáró foglalatokba kerültek a megfelelően alacsony hőtehetetlenségű M4*4-es sárgaréz csavarokból kialakított „mérőcsúcsok”. Ezen csavarok belsejében 2,1 mm-es furatokban létesített forrasztási pont adta a termoelem melegpontját.
Ezzel az érzékelőrendszer kialakítással a vízmentes szigetelés, a megfelelően alacsony hőtehetetlenség és a termoelem érzékelőpontjainak a rögzítése is megoldódott.


A termoelem 335-8173 jelű, a Labfacility által gyártott PTFE TW-TW, T típusú 0,2 mm átmérőjű vezetékpárból áll (8. ábra).
A danamit csavarokban kialakított furatokba kerültek az érzékelőket tartalmazó kis rézcsavarok. Az illesztéseknél Gumiám-G szolgált tömítés gyanánt.



8. ábra A termoelemek melegpontjai


Az érzékelők tartályba való bevezetéséhez egy flexibilis csőszakasz közbeiktatására volt szükség. Az érzékelőket befogadó csőszakasz tárolóbeli rögzítése bontott merevlemez-ritkaföldfém mágnesek segítségével került megoldásra. Ezen mágnesek gondoskodnak arról, hogy az érzékelősor függőlegesen helyezkedjen el, és a mérőpontok a kívánt pozícióban, a bojler falától 40 mm távolságban legyenek.


A 9. ábra a teljes beépített részt (hőcserélő+mérőérzékelők) mutatja. A vízelvétel automatizálása mágnesszelep beiktatásával valósult meg. A 10. ábra az összeszerelt tároló egységet mutatja.



9. ábra A beépített hőcserélő és a mérőérzékelők



10. ábra A tároló egység


A napkollektor és a tároló összekötése 2×21 m hosszúságú, részben polifoam szigetelő réteggel bevont 1,5 cm külső átmérőjű vörösréz csőszerelvényekkel készült.

Mérési körülmények
Az adatgyűjtő rendszer az Advantech cég ADAM 4000 sorozatú moduljaiból épült fel. Az alkalmazott mérő-kiértékelő szoftver Windows alatt futó, C nyelven íródott egyedi program (Bíró, 1996). A mérőrendszer kalibrálását követően történtek a mérések.


A vízfogyasztás mértéke óránkénti, 0-60 liter értékű, 10 l/min térfogatárammal. A rendszer szabályozásánál a bevezetésben említett hőmérsékletkülönbség küszöb beállítása 5 °C volt. A rendszer 2006. júl. 4. óta üzemel ebben a kialakításban. A helyszínen található meteorológiai állomás szolgáltatta a globálsugárzás és környezeti hőmérséklet adatokat, melyeket a monitorozó rendszer percenként rögzít a réteghőmérsékletek, a kollektorba be és onnan kilépő szolárfolyadék, a fogyasztott és helyette a utánpótlásként érkező víz és a tároló környezetének hőmérsékletével együtt.


Eredmények


A belső hőcserélős szoláris tároló energetikai vizsgálatát részben mérések segítségével, részben pedig neurális hálós modellezéssel végeztük el.


Mérési eredmények
A réteghőmérsékletek 14,3 és 54,5 °C között változtak, miközben a sugárzás 0-1140 W/m2, a környezet hőmérséklete pedig -6 – 39 °C közötti értékű volt. A mérési időtartamban a rendszer által gyűjtött energia 2006. júl. 11-én volt a legtöbb (22,4 MJ), 7×30 liter napközbeni vízkivétel mellett.


Az adatok alapján fontos megjegyezni, hogy a fogyasztás lényegesen befolyásolja a rendszer teljesítményét. A napi energiabehozatal továbbá a meteorológiai adatok mellett a kezdő réteghőmérsékletekre is érzékeny.


Meghatározásra kerültek a rendszer termikus paraméterei (kollektor termikus időállandója 132 s; tároló hőveszteségi tényezője 0,76 W/m2K), valamint a kollektor optimális fajlagos energiabehozatalához (4,6 kWh/m2) szükséges ideális fajlagos energiafogyasztás (2,1 kWh/m2).


A tároló magassága mentén 8 egyenlő vastagságú rétegben megvalósult termikus rétegzettségre mutat példát a 11. ábra a 12. ábra szerinti sugárzás (vonal) és fogyasztás (oszlop) esetén (2006. 09. 22.). A réteghőmérsékletek alakulásából jól meghatározható a vízfogyasztások ideje.



11. ábra A réteghőmérsékletek alakulása



12. ábra Fogyasztás és sugárzás eloszlása


A rendelkezésre álló mérési adatok kedvező lehetőséget kínáltak a tároló oldalán a termikus rétegzettségből adódó többlet energia meghatározására.. A tárolóból kivett hő rétegzett tárolónál az aktuális felső réteg és a csapvíz hőmérsékletkülönbségének segítségével, míg kevert tároló esetén a tárolóbeli víz átlaghőmérsékletének és a csapvíz hőmérsékletének különbségéből számítható. A 2006 évi mérési adatok alapján a ténylegesen kivett hő 17,3%-kal haladta meg a termikusan teljesen kevert tároló esetén ugyanennyi víz kivételével adódó hő értékét. Mivel ez számottevő érték, megállapítható tehát, hogy a közepes és nagyméretű rendszereknél már megszokott termikus rétegzettségre törekvés a háztartási méretű rendszerek kialakításánál és hatékony működtetésénél is fontos szempont kell hogy legyen.


Modellezési eredmények
A síkkollektoros rendszer működése során lezajló termikus és áramlástani folyamatok nagyon összetettek, leírásuk történhet pl. a tárolóban kialakuló hőmérséklet és sebességmező meghatározásával. A hőmérséklet térbeli és időbeli alakulását a hőtranszport egyenletből, míg a sebességmezőt a viszkózus folyadékokra érvényes Navier-Stokes egyenletekből lehet meghatározni, felhasználva a kontinuitási egyenletet és a sűrűség és nyomás közötti kapcsolatot tartalmazó állapotegyenletet, valamint a kezdeti- és peremfeltételeket. A tároló rétegeinek hőmérsékletét leíró egyenletek tehát bonyolultak, elhanyagolásokat tartalmaznak, a bennük szereplő paraméterek meghatározása sokszor nagyon körülményes és az egyenletek csak valamilyen közelítő módszerrel oldhatók meg, amik a fizikai alapú modellek nehézségei.


A mérési adatok gyűjtésével az energetikai analízis mellett az volt az elsődleges cél, hogy alapadatokat szolgáltasson a várható réteghőmérsékletek mesterséges neurális háló segítségével történő becsléséhez. Ez a modellezési módszer sok mérési adatot igényel, hiszen a hálónak a minták alapján kell megtanulnia a rendszer viselkedését. A rendelkezésre álló több mint 300 000 adatsor alapján kidolgozott modell (Géczyné, 2007) validálásának eredményét mutatja egy 2 napos időtartamra (2006. szept. 26-27.), 2×20 ill. 4×25 l vízfogyasztás mellett a 13. ábra. Ti az i-edik réteg mért, NNi pedig a neurális háló által generált réteghőmérsékletét jelenti (i=1 a legfelső, i=8 a legalsó rétegre utal).



13. ábra Mért és a neurális hálós modell által generált réteghőmérsékletek


A modell, amely a MATLAB szoftver neurális hálós eszköztárának felhasználásával a Levenberg-Marquardt tanulóalgoritmus alkalmazásával készült 2 részből áll: mindkettő egy 2 rétegű előrecsatolt háló, a kimeneti rétegében 8 db lineáris átviteli függvényű neuronnal, a rejtett rétegben azonban a fogyasztásmentes szakaszokon 8 db, míg a fogyasztási szakaszon 19 db tangems-szigmoid átviteli függvényű neuront tartalmaz.


A kollektor időállandója, a termoelemek hőtehetetlensége, a meteorológiai adatok változási gyorsasága és a termikus rétegződés elfogadható pontossággal történő leírása szempontjából ideálisnak tekinthető 5 perces átlagos adatokra kidolgozott modellel becsült réteghőmérsékletek átlagos eltérése a mért értékektől 0,24 °C, ami a mérnöki gyakorlat szempontjából jó eredménynek tekinthető.


Összegzés


• Belső hőcserélős tároló kialakításával a termikus rétegződés jelentős mértékben fokozható, ami a rendszer energianyereségét eredményezi kisméretű rendszer esetén is.
• A napenergiás rendszer napi energiabehozatala rendszeres melegvízfogyasztással növelhető, és a meteorológiai adatok mellett a kezdeti réteghőmérséklet is befolyásolja.
• A mérési adatokra alapozva kidolgozott neurális hálós modell segítségével a tárolóbeli réteghőmérsékletek jól becsülhetők.



Irodalom
Andersen E., Furbo S. (1998): Thermal destratification in small standard solar tanks due to mixing during tapping. Report SR-9825. Department of Buildings and Energy, Technical University of Denmark
Christofari C., Notton G., Poggi P. and Louche A. (2003): Influence of the flow rate and the tank stracification degree on the performances of a solar flat-plate collector. International Journal of Thermal Sciences, 42 (5), pp. 455-469.
Farkas I., Bíró A., Buzás J., Hegyi K., Lágymányosi A., Seres I., Seres E. E., Szűcs M. (1998): Oktatási és demonstrációs célú napenergia hasznosító berendezések. Magyar Energetika, VI. évf. 3. sz. pp. 17-24.
Géczyné V. P. (2007): Napkollektoros rendszerek modellezése neurális hálóval, Doktori értekezés, Szent István Egyetem, Gödöllő
Hahne E., Chen Y. (1998): Numerical study of flow and heat transfer characteristics in hot water stores. Solar Energy, 64 (1-3), pp. 9-18.
Kleinbach E.M. et al. (1993): Performance study of onedimensional models for stratified thermal storage tanks. Solar Energy, 50 (2), pp. 155-166.
Matrawy K.K., Farkas I. (1996): Solving of a model for solar hot water tanks. International Journal of Ambient Energy, 17 (2), pp. 65-72.
Zachár A. et al. (2003): Numerical analysis of the impact of plates for the thermal stratification inside a storage tank with upper and lower inlet flows. Solar Energy, 74 (4), pp. 287-302.

Géczyné Víg Piroska, Farkas István

2 hozzászólás

  1. danyi.gabi7189_gmail.com-
    2009. július 4. - 21:42

    mi a véleményetek drain Back rendszerről ami állítólag gazdaságosabb minden tekintetben több energiát hoz ki a kollektorból ugyanilyen kondíciók mellet? hány fokra melegedhet fel a DB .koli üresjáratban? 200??

  2. 2009. október 21. - 19:37

    Csak most olvastam….. Nálam jobb minden tekintetben ,mert akkor amikor a család pl. : elmegy nyaralni , akkor nincs rá gond , tekintettel ha túlmelegedne akkor a keringető leáll és a koli üresben áll. Igaz a hőmérséklete felmehet 200 C fok fölé, de nem káros. A folyadék nem forr fel. Ugyan csak szerencsés, ha áramszünet van, akkor is u.a. a helyzet.
    Télen szobahőmérsékletű folyadék megy föl, ezért az üres koli hamarabb éri
    el „üzemi „hőmérsékletet.Csak ilyeneket telepítek, ha a ház építése erre alkalmas.Könyebb telepítés, kevesebb alkatrész.. stb.

Szóljon hozzá

A hozzászóláshoz be kell jelentkezni.